17 New Build Apartments Social Housing Haringey

Project Overview

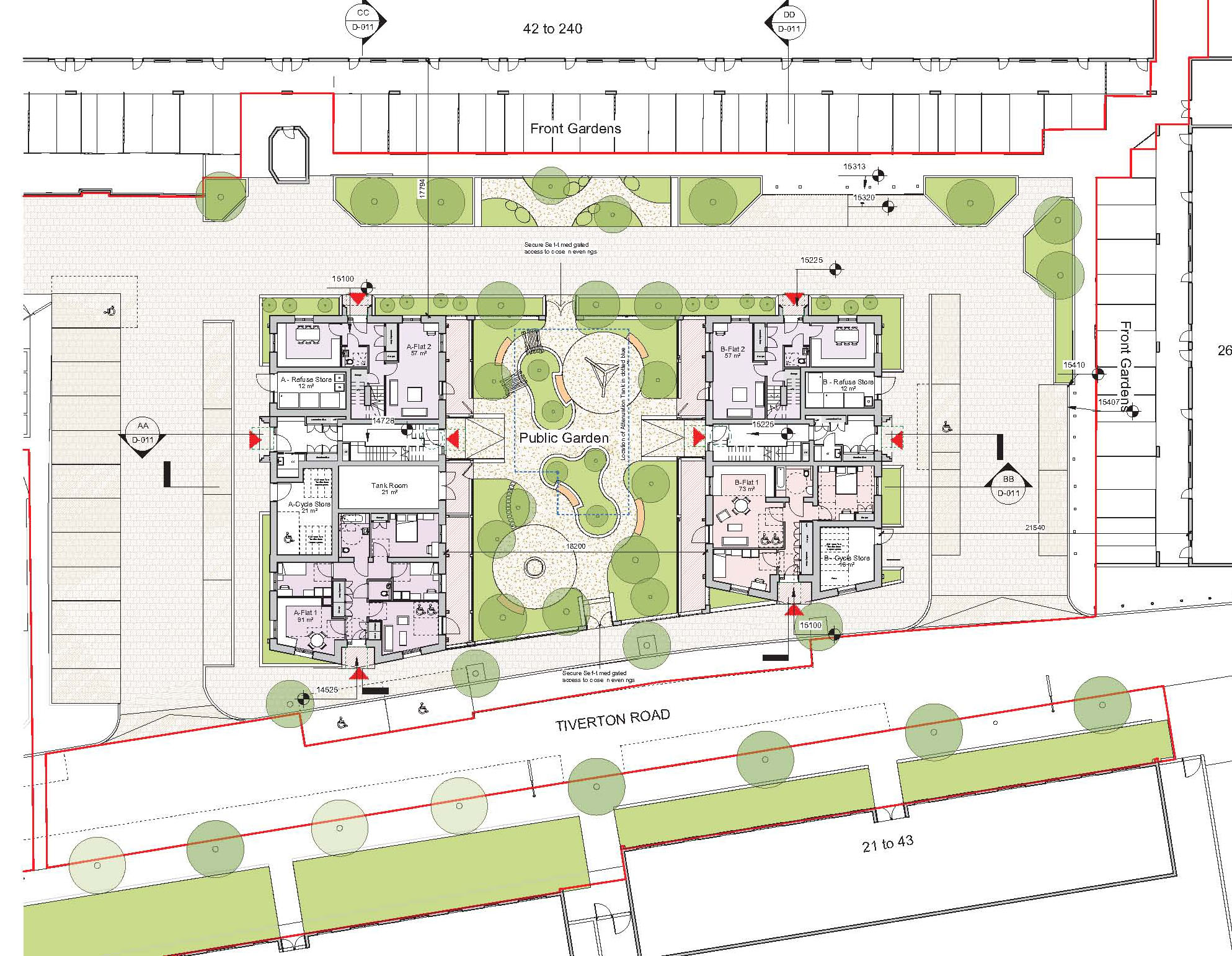
17 new build apartments for social rental tenure arranged across two 4-storey blocks in Haringey. All units are dual aspect flats facing north/south and 85% of flats are triple aspect units. The scheme incorporates associated communal amenity space, private outdoor space, landscaping, cycle parking, and refuse storage. Some landscaped areas will be designed for communal use by new and existing residents, complemented by clearly defined areas of private amenity to support high-quality residential living. Planning Application has been submitted

Category
Housing
Tags
Contemporary houses, New apartments, Social Housing, Sustainability

Marlen Tallett

Marlen has over 15 years' experience in the TV & Film industry, and 7 years' experience in supporting businesses administratively across various industries from hospitality, to eCommerce and everything in between.

Marlen joined bubble in 2025, helping to ensure the admin side of the business is running smoothly, which allows the studio team to give their all to client projects.

Minnie

In the corner of the room, her bed lies still,
No more the gentle paws that roamed at will.
Minnie, our friend, with eyes so kind,
Left paw prints of love on every mind.

Her wagging tail, a welcome so bright,
Turned long workdays into pure delight.
She'd sit by our side, a comforting guide,
In her quiet way, she was our pride.

Her little nose would nudge for a treat,
Or curl up beneath us, so warm, so sweet.
Now the office feels a bit less whole,
For Minnie brought joy that filled the soul.

Though she’s gone, her spirit stays,
In every corner, in countless ways.
We miss her dearly, her love so true,
Minnie, our friend, we’ll always miss you.

 

 

 

 

Lottie

Lottie is our rescue dog. She is a Portuguese podengo mix and she is very happy to be with us in the office. She enjoys many cuddles, kisses and treats from everbody underneath their tables!

 

 

 

 

Patricia Hickey

Over the past 25 years Patricia Hickey has worked as an Architect and Sustainability Coach in Germany and throughout the UK.

Patricia began her career in Germany at small design practices. She moved to London in 2002 where she joined one of UK’s leading commercial practices, 3DReid. There she established a strong background in residential and retail schemes for the UK market.

She has led major developments and social housing schemes, including a 535-unit-residential-led mixed-use scheme, through planning and construction stage.

Since setting up bubble architects, she focuses on delivering high quality housing schemes in UK. Her core skills include the ability to deliver complex schemes to tight deadlines and on budget.

Patricia qualified at the Universities Carolo Wilhemina Brunswick, Technical University Berlin and Westminster University London. She has a particular interest and expertise in sustainability.

She is a licenced BRE Code for Sustainable Homes Assessor and External Examiner at Kingston University, School of Art, London.

Michael Hickey

Michael Hickey established bubble architects with Patricia at the end of 2009 to focus on producing well designed and commercially successful residential led proposals.

Educated at the DIT in Dublin Ireland, he originally qualified as an Architectural Technologist before coming to London in 1983. He subsequently studied at the London MET where he studied architecture. He has worked for a number of top 10 UK practices.

Prior to setting up bubble architects, he was the design lead and coach at one of UK’s leading commercial practices. He was responsible for developing a wide variety of schemes including high end residential projects in Park Lane and Mayfair London. His last scheme at that practice was nominated for `best new Office Building’ in Central London by the British Council of Offices.

With over 35 years of experience, Michael understands both the commercial aspects of the industry together with the planning framework within which they will be developed. He enjoys the combination of conceptual design as well as technical design development.

 

Iain Sang

Ian Sang joined the bubble team in 2014.

Ian is originally from Glasgow but trained in Manchester, where he briefly worked and in Edinburgh. He headed to London way back in 1975 to specialize in housing design, which he has done ever since in both public and private sectors.

Most recently he was technical director at Sprunt Architects where he was responsible for monitoring and ensuring the technical accuracy and quality of all the output from three architectural design teams and one landscape design team.

If you would like to know more about Ian’s work and experience please visit his website iansangarchitect.com.

 

 

Salome Ripoll

Salomé graduated in Architecture at Technical School of Architecture of Barcelona. Before moving to London, Salomé worked at Barcelona’s Public Space Department gaining knowledge in urban spaces and furniture. She combined it with being a Teaching Assistant at the Structure’s Department at her University.

Salome joined bubble architects in October 2016. She is Associate Director leading several residential projects from design to managing projects and completion on site.

 

 

Pelin Alemdar

Pelin joined bubble architects in 2024. She completed her bachelor’s degree in architecture in TOBB University of Economics and Technology and gained hands-on experience in practices in Turkey and Hungary, working on a variety of projects. Driven by a keen interest in how architecture shapes everyday life in cities, she pursued a Master’s degree in Architecture and Urbanism at the Manchester School of Architecture.  Pelin works on residential projects, contributing project development.

Ashriya Gurung

Born in Nepal, since moving to the UK, Ashriya has completed her Bachelor’s degree in Architecture at the University of West of England in Bristol. Before joining the bubble team in February 2021, she has worked at architects’ practices between semesters where she would assist in making models and drawings for projects involving residential, church buildings, and office conversion. After completing her studies, she joined bubble architects and is now working on a range of projects, primarily residential through different design stages.